/media/crossbase/fot_pro_per_86507020_sall_ainfs_v1_lj_366x382.jpg
/media/crossbase/zei_pro_sch_86507020_sall_ainfs_v1_lj_366x382.jpg
/media/crossbase/fot_pro_per_86507020_sall_ainfs_v1_lj_366x382.jpg
/media/crossbase/zei_pro_sch_86507020_sall_ainfs_v1_lj_366x382.jpg

Wasserzählerstrecke XS, 2" Koax

Figur 865 07 020

  • mediumberührte Metallteile aus entzinkungsfreiem und korrosionsbeständigem Rotguss, beständig gegen aggressives Wasser
  • bestehend aus Unterputzventil und WZ-Gehäuse mit Einputz- und Überströmkappe
  • Einbautiefe variabel innerhalb der Einbaumaße des Wasserzählers

Produktmerkmale

  • mediumberührte Metallteile aus entzinkungsfreiem und korrosionsbeständigem Rotguss, beständig gegen aggressives Wasser
  • bestehend aus Unterputzventil und WZ-Gehäuse mit Einputz- und Überströmkappe
  • Einbautiefe variabel innerhalb der Einbaumaße des Wasserzählers
  • zum Einbau einer Kalt- und Warmwassermesskapsel
  • als einteilig gegossene Wasserzählerstrecke
  • wartungsfreie EPDM-Spindelabdichtung
  • Innengewinde
  • totraumfrei
  • angegossene Befestigungsfüße mit Schallentkopplung
  • Undichtigkeitserkennung für Innenoberteil und Wasserzähleraufnahme
  • geringes Einbaumaß durch 65mm Stichmaß
  • mit universellen Multi-Wasserzählergehäusen G 2 koaxial

Normen & Zulassungen

  • nach UBA KTW BWGL
  • nach UBA BWGL Metalle
  • Schallschutzzulassung nach DIN EN ISO 3822 Klasse 1

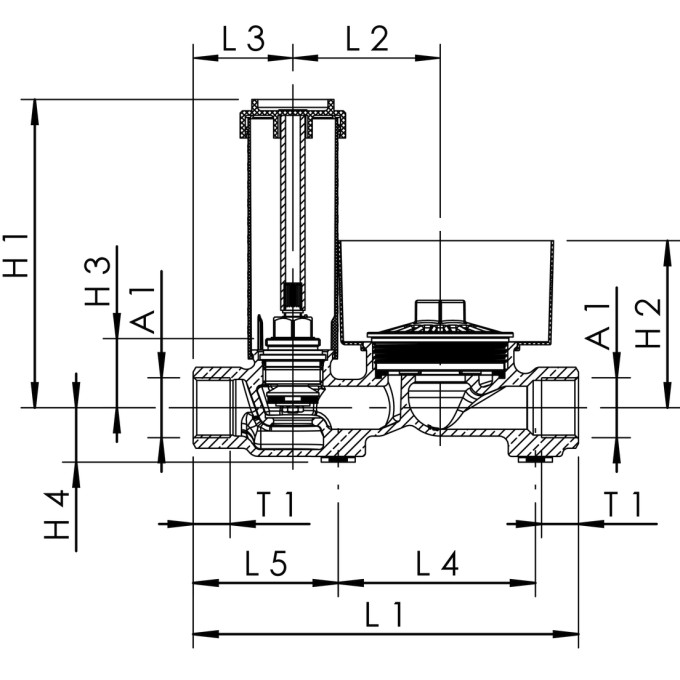
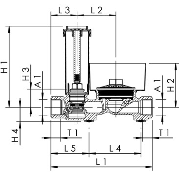
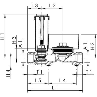
Technische Daten

  • Stichmaß 65 mm
  • Druckstufe PN 16
  • max. Betriebstemperatur 70 °C
  • kurzfristige Spitzentemperatur 95 °C
/media/crossbase/zei_pro_sch_86507020_sall_ainfs_v1_lj_404xy.jpg
Bestellnr. DN A1 H1
(mm)
H2
(mm)
H3
(mm)
H4
(mm)
L1
(mm)
L2
(mm)
L3
(mm)
L4
(mm)
L5
(mm)
T1
(mm)
kvs
(m³/h)
Gewicht
(kg)
8650702000 20 Rp 3/4 136 73,7 30,5 24 170 65 44 87 64 16,3 3 1,20

CAD Modelle

Bestellnr. DN CAD Modell
8650702000 20 3D Daten anzeigen

Downloads

Datenblatt
Dateityp
Produktdatenblatt
pdf
Prospekte
Dateityp
Prospekt Unterputzportfolio
pdf (1,35 MB)