/media/crossbase/fot_pro_per_85527020__sall__ainfs__v2.jpg_lj_366x382.jpg
/media/crossbase/zei_pro_sch_85527020__sall__ainfs__v1.jpg_lj_366x382.jpg
/media/crossbase/fot_pro_per_85527020__sall__ainfs__v2.jpg_lj_366x382.jpg
/media/crossbase/zei_pro_sch_85527020__sall__ainfs__v1.jpg_lj_366x382.jpg

CLASSIC Absperr-Wasserzähler-Kombination HWW-Modell 153 mm

Figur 855 27 020

  • mediumberührte Metallteile aus entzinkungsfreiem und korrosionsbeständigem Rotguss, beständig gegen aggressives Wasser
  • mit universellem Multi-Wasserzählergehäuse G 2 koaxial nach HWW-Modell
  • bestehend aus Unterputzventil und WZ-Gehäuse mit Einputz- und Überströmkappe

Produktmerkmale

  • mediumberührte Metallteile aus entzinkungsfreiem und korrosionsbeständigem Rotguss, beständig gegen aggressives Wasser
  • mit universellem Multi-Wasserzählergehäuse G 2 koaxial nach HWW-Modell
  • bestehend aus Unterputzventil und WZ-Gehäuse mit Einputz- und Überströmkappe
  • zum Einbau einer Kalt- oder Warmwassermesskapsel
  • Einbautiefe variabel innerhalb der Einbaumaße des Wasserzählers
  • wartungsfreie EPDM-Spindelabdichtung
  • stufenlos kürzbarer Kunststoffschaft
  • Innengewinde
  • totraumfrei
  • angegossene Befestigungsrippe für optional erhältlichen Befestigungsfuß

Normen & Zulassungen

  • UP-Ventil(e) DVGW-Zulassung
  • nach UBA KTW BWGL
  • nach UBA BWGL Metalle
  • UP-Ventil mit Schallschutzzulassung nach DIN EN ISO 3822 Klasse 1
  • DIN EN 1213
  • ÜA-Reg.-Nr. R-15.2.3-21-17048, WIEN-ZERT

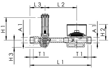
Technische Daten

  • Stichmaß 153 mm
  • Druckstufe PN 10
  • max. Betriebstemperatur 70 °C
  • kurzfristige Spitzentemperatur 95 °C
/media/crossbase/zei_pro_sch_85527020__sall__ainfs__v1.jpg_lj_404xy.jpg
Bestellnr. DN A1 H1
(mm)
H2
(mm)
H3
(mm)
L1
(mm)
L2
(mm)
L3
(mm)
T1
(mm)
kg
8552702000 20 Rp 3/4 110 76 35 296 153 73 16,3 1,54

CAD Modelle & Kennlinien

Bestellnr. DN CAD Modell Kennlinie
8552702000 20 3D Daten anzeigen Kennlinie anzeigen

Downloads

Datenblatt
Dateityp
Produktdatenblatt
pdf
Prospekte
Dateityp
Gebäudetechnik Armaturen und Systeme
pdf (15,76 MB)
Prospekt Absperr-WZ-Programm
pdf (0,33 MB)
Technische Informationen
Dateityp
Produktdaten nach VDI 3805, Blatt 17
zip (0,1 MB)
Ersatzteilhandbuch 2024
pdf (4,88 MB)
Durchflussdiagramme CLASSIC Absperr-Wasserzähler-Kombination
pdf (0,02 MB)