/media/crossbase/fot_pro_per_68903006_sall_ainfs_v2_lj_366x382.jpg
/media/crossbase/zei_pro_sch_68903006_sall_ainfs_v1_lj_366x382.jpg
/media/crossbase/fot_pro_per_68903006_sall_ainfs_v2_lj_366x382.jpg
/media/crossbase/zei_pro_sch_68903006_sall_ainfs_v1_lj_366x382.jpg

KHS Hygiene Flush Box PURE, s dvěma přívody

Figur 689 03 006

  • Obzvlášť se hodí pro časově řízené intervalové proplachování v malých objektech
  • pro automaticky spouštěnou obměnu vody k zajištění provozu podle pokynů
  • Umožňuje turbulentní výměnu vody v potrubích pitné vody do DN 50

Atributy výrobku

  • Obzvlášť se hodí pro časově řízené intervalové proplachování v malých objektech
  • pro automaticky spouštěnou obměnu vody k zajištění provozu podle pokynů
  • Umožňuje turbulentní výměnu vody v potrubích pitné vody do DN 50
  • Se dvěma přívody (skupiny výměny vody) např. pro studenou pitnou vodu (PWC) a teplou pitnou vodu (PWH)
  • Kovové části, které se dotýkají média, jsou z červeného bronzu odolného proti odzinkování a korozi, proti agresivní vodě, nerezové oceli a plastům povolených pro systémy pitné vody.
  • Montáž pro všechny situace (na a do omítky)
  • k zabudování v mokré stavbě nebo v systémech na stěnu
  • Malý montážní rozměr
  • rychlá montáž pomocí vrtací šablony
  • Montážní rám (včetně hloubkového vyrovnání) a upevňovacího materiálu
  • Výměnné víko (včetně pojistky) s funkcí magnetické západky Push-to-open
  • velký revizní otvor
  • vnější závit pro šroubení s plochým těsněním
  • možnost uzavření pro udržbu
  • magnetický ventil s integrovaným jemným sítkem
  • Průtok 10l/min (5l/min nebo 15l/min s volitelným příslušenstvím)
  • Z výroby namontovaná proplachovací sada pro uvedení do provozu
  • Údržbu všech funkčních dílů lze provádět bez použití nářadí
  • integrované sledování přepadu
  • Integrovaný sifon (> 45 l/min) s odnímatelnou protizápachovou zátkou
  • Volný odtok podle DIN EN 1717
  • Výška zahlcovací vody 50mm podle DIN 1986-100
  • Jmenovitá světlost odtoku (DN 40 a DN 50)
  • Řídicí jednotka PURE
  • Uvedení do provozu rukou na přístroji
  • Proplachování s řízenými intervaly
  • Až 100000 položek událostí pro doklad provozu v souladu s určením (načtení pomocí USB)
  • Beznapěťový kontakt hlášení poruchy
  • Automatické rozpoznávání a kontrola všech funkčních dílů
  • Bzučák pro chybová hlášení (ve třech stupních hlasitosti)
  • LED indikace stavu
  • externí spojení bez výjimky jako pevné připojení ve skříni (nejsou nutné žádné externí přívodní zásuvky)
  • Regulátor předmontovaný ve skříni (délka výstupního kabelu 5m)
  • Je možná výbava k řídicí jednotce PRO

Normy a schválení

  • Registrace DVGW
  • Registrace SVGW
  • Registrace WRAS
  • Registrace KIWA
  • Registrace BELGAQUA
  • podle hodnoticích kritérií Spolkového úřadu pro životní prostředí pro kovy (UBA BWGL Metalle)
  • povolení zvukové izolace podle DIN EN ISO 3822 třída 1 (až 30l/min)

Technické údaje

  • hladina tlaku PN 10
  • max. Provozní teplota 70 °C
  • krytí IP44
  • napájení 230 V AC
  • Odebíraný výkon 4.5 W
  • příkon v pohotovostním režimu 3.9 W
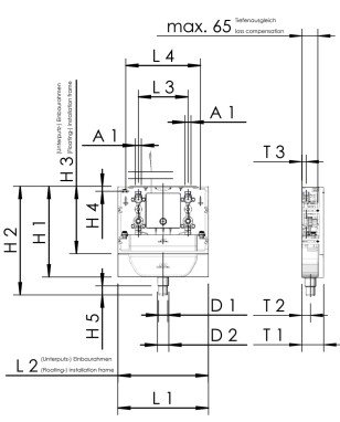
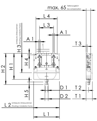
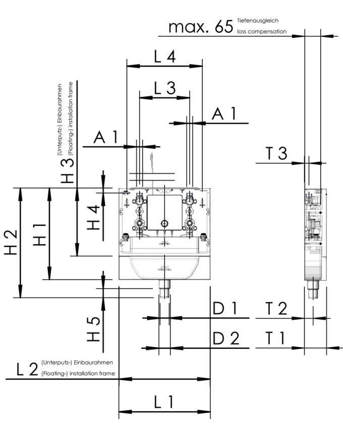
/media/crossbase/zei_pro_sch_68903006_sall_ainfs_v1_lj_404xy.jpg
Číslo objednávky DN A1 D1
(mm)
D2
(mm)
H1
(mm)
H2
(mm)
H3
(mm)
H4
(mm)
H5
(mm)
L1
(mm)
L2
(mm)
L3
(mm)
L4
(mm)
T1
(mm)
T2
(mm)
T3
(mm)
max. dynamický tlak
(MPa)
Minimální hydraulický tlak
(MPa)
jmenovitá šířka
přípoje odpadové
vody (mm)
Hmotnost
(kg)
6890300600 15 G 3/4 40 50 400 480 297 21.8 40 400 398 219 330 97 38.25 19.7 0.7 0.1 40 / 50 8.60

CAD model a charakteristiky

Číslo objednávky DN CAD model Charakteristická křivka
6890300600 15 Zobrazení 3D dat Zobrazení charakteristické křivky

Soubory ke stažení

Datový list
Typ souboru
Datový list produktu
pdf
Pokyny
Typ souboru
návod k údržbě KHS hygienického proplachování PRO/PURE/LITE
pdf (5,99 MB)
Rychlý přehled PURE
pdf (3,11 MB)
Montážní návod a návod k obsluze hygienické proplachování PRO/PURE/LITE
pdf (14,92 MB)
montážní návod hygienické proplachování PRO/PURE/LITE
pdf (9,5 MB)
Brožury
Typ souboru
prospekt KHS hygienické proplachování
pdf (4,84 MB)
Brožura Hygienický systém KHS pro operátory
pdf (5,13 MB)
Technické informace
Typ souboru
software KHS hygienické proplachování Box PRO/ PURE
zip (1,08 MB)
rozměry podomítkového montážního rámu a výměnného víka
pdf (0,07 MB)
předávací protokol PURE
pdf (0,62 MB)
protokol o údržbě PURE
pdf (0,83 MB)