/media/crossbase/fot_pro_per_361_sall_ainfs_v1_lj_366x382.jpg
/media/crossbase/zei_pro_sch_36101_sall_ainfs_v1_lj_366x382.jpg
/media/crossbase/fot_pro_per_361_sall_ainfs_v1_lj_366x382.jpg
/media/crossbase/zei_pro_sch_36101_sall_ainfs_v1_lj_366x382.jpg

PROTECT Systemtrenner BA, Flanschanschluss

Figur 361 01

  • zur Absicherung von Trinkwasser gegen Nichttrinkwasser bis einschl. Flüssigkeitskategorie 4 nach DIN EN 1717 / DIN 1988-100
  • mediumberührte Metallteile aus Edelstahl
  • integrierte differenzdruckgesteuerte und wartungsfreundliche Sicherungskartusche inklusive RV

Produktmerkmale

  • zur Absicherung von Trinkwasser gegen Nichttrinkwasser bis einschl. Flüssigkeitskategorie 4 nach DIN EN 1717 / DIN 1988-100
  • mediumberührte Metallteile aus Edelstahl
  • integrierte differenzdruckgesteuerte und wartungsfreundliche Sicherungskartusche inklusive RV
  • mit kontrollierbarer Mitteldruckkammer
  • Flanschanschluss
  • inkl. drei Prüfventile
  • Ablaufrohranschluss aus Edelstahl HT 150
  • eingangs- und ausgangsseitiger Rückflussverhinderer
  • totraumfrei
  • Einbaulage waagerecht, Ablaufventil unten
  • die Anforderung zur Wartung gem. DIN EN 806-5 ist einzuhalten

Normen & Zulassungen

  • DVGW-Zulassung
  • nach UBA BWGL Metalle
  • DIN 2576 / DIN EN 12729 / DIN EN 1717

Technische Daten

  • Druckstufe PN 10
  • max. Betriebstemperatur 60 °C
  • min. Vordruck 0,15 MPa
/media/crossbase/zei_pro_sch_36101_sall_ainfs_v1_lj_404xy.jpg
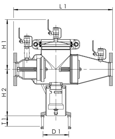
Bestellnr. DN Anzahl Bohrungen D1
(mm)
H1
(mm)
H2
(mm)
L1
(mm)
T1
(mm)
Anschluss-
nennweite
Abwasser (mm)
Gewicht
(kg)
3610106500 65 4 146 310 270 559 60 146 32,00
3610108000 80 8 146 310 270 559 60 146 32,50
3610110000 100 8 146 310 300 559 60 146 33,00
3610115000 150 8 146 350 300 695 60 146 57,00

CAD Modelle

Bestellnr. DN CAD Modell
3610106500 65 3D Daten anzeigen
3610108000 80 3D Daten anzeigen
3610110000 100 3D Daten anzeigen
3610115000 150 3D Daten anzeigen

Downloads

Datenblatt
Dateityp
Produktdatenblatt
pdf
Anleitung
Dateityp
Einbau- und Bedienungsanleitung PROTECT Systemtrenner BA, Flanschanschluss
pdf (2,62 MB)
Prospekte
Dateityp
Gebäudetechnik Armaturen und Systeme
pdf (15,76 MB)
Ratgeber Sicherungsarmaturen
pdf (6,15 MB)
Technische Informationen
Dateityp
Produktdaten nach VDI 3805, Blatt 17
zip (0,1 MB)
Flanschanschlussmaße
pdf (0,06 MB)
Ersatzteilhandbuch 2024
pdf (4,88 MB)
Formular zur Inspektion und Wartung Systemtrenner BA
pdf (0,12 MB)
Durchflussdiagramme PROTECT Systemtrenner BA, Flanschanschluss
pdf (0,05 MB)