/media/crossbase/fot_pro_per_85547_sall_ainfs_v2_lj_366x382.jpg
/media/crossbase/zei_pro_sch_85547020_sall_ainfs_v1_lj_366x382.jpg
/media/crossbase/fot_pro_per_85547_sall_ainfs_v2_lj_366x382.jpg
/media/crossbase/zei_pro_sch_85547020_sall_ainfs_v1_lj_366x382.jpg

RG120 Absperr-Wasserzähler-Kombination HWW-Modell, 120 mm

Figur 855 47

  • mediumberührte Metallteile aus entzinkungsfreiem und korrosionsbeständigem Rotguss, beständig gegen aggressives Wasser
  • mit universellem Multi-Wasserzählergehäuse G 2 koaxial nach HWW-Modell
  • bestehend aus Unterputzventil und WZ-Gehäuse mit Einputz- und Überströmkappe

Produktmerkmale

  • mediumberührte Metallteile aus entzinkungsfreiem und korrosionsbeständigem Rotguss, beständig gegen aggressives Wasser
  • mit universellem Multi-Wasserzählergehäuse G 2 koaxial nach HWW-Modell
  • bestehend aus Unterputzventil und WZ-Gehäuse mit Einputz- und Überströmkappe
  • Einbautiefe variabel innerhalb der Einbaumaße des Wasserzählers
  • zum Einbau einer Kalt- oder Warmwassermesskapsel
  • als einteilig gegossene Wasserzählerstrecke
  • wartungsfreie EPDM-Spindelabdichtung
  • Innengewinde
  • totraumfrei
  • angegossene Befestigungsfüße mit Schallentkopplung

Normen & Zulassungen

  • UP-Ventil(e) DVGW-Zulassung
  • nach UBA KTW BWGL
  • nach UBA BWGL Metalle
  • UP-Ventil mit Schallschutzzulassung nach DIN EN ISO 3822 Klasse 1
  • ÜA-Reg.-Nr. R-15.2.3-21-17048, WIEN-ZERT

Technische Daten

  • Stichmaß 120 mm
  • Druckstufe PN 10
  • max. Betriebstemperatur 70 °C
  • kurzfristige Spitzentemperatur 95 °C
/media/crossbase/zei_pro_sch_85547020_sall_ainfs_v1_lj_404xy.jpg
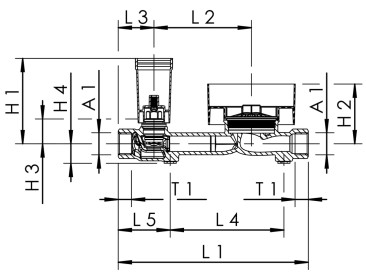
Bestellnr. DN A1 H1
(mm)
H2
(mm)
H3
(mm)
H4
(mm)
L1
(mm)
L2
(mm)
L3
(mm)
L4
(mm)
L5
(mm)
T1
(mm)
kvs
(m³/h)
kg
8554702000 20 Rp 3/4 105 75 31 24 234 120 44 140 64 16,3 4,1 1,59

CAD Modelle & Kennlinien

Bestellnr. DN CAD Modell Kennlinie
8554702000 20 3D Daten anzeigen Kennlinie anzeigen

Downloads

Datenblatt
Dateityp
Produktdatenblatt
pdf
Anleitung
Dateityp
Einbau- und Bedienungsanleitung RG120 Absperr-WZ-Kombinationen und -Montageblöcke
pdf (1,19 MB)
Prospekte
Dateityp
Gebäudetechnik Armaturen und Systeme
pdf (15,76 MB)
Prospekt Absperr-WZ-Programm
pdf (0,33 MB)
Technische Informationen
Dateityp
Produktdaten nach VDI 3805, Blatt 17
zip (0,1 MB)
Ersatzteilhandbuch 2024
pdf (4,88 MB)
Durchflussdiagramme RG120 Absperr-Wasserzähler-Kombination
pdf (0,02 MB)